Render o imagen del proyecto Boedo

Desarrollo Zazpe

Descripción del proyecto

Renders del proyecto

Vista Exterior

Descripción render

Sobre el proyecto

Este desarrollo está ubicado en Monseñor Zazpe 2443, Santa Fe, Argentina.

Continuación o desarrollo de Zazpe 2433.

Características:

Carac1 - Unidades de 1 y 2 ambientes con superficies de 12.5 a 44 m² totales

Carac2 - Excelente calidad constructiva con materiales de primera línea

Carac3 - Financiación en pesos + CAC sin gastos de boleto y comisión

Carac4 - Diseño moderno con estilo innovador y máximo aprovechamiento lumínico

Inversión inicial desde X USD con entrega programada para X.

Estado actual del proyecto

Ubicación
Monseñor Zazpe 2433
Unidades
X departamentos.
3 Niveles.
Entrega X

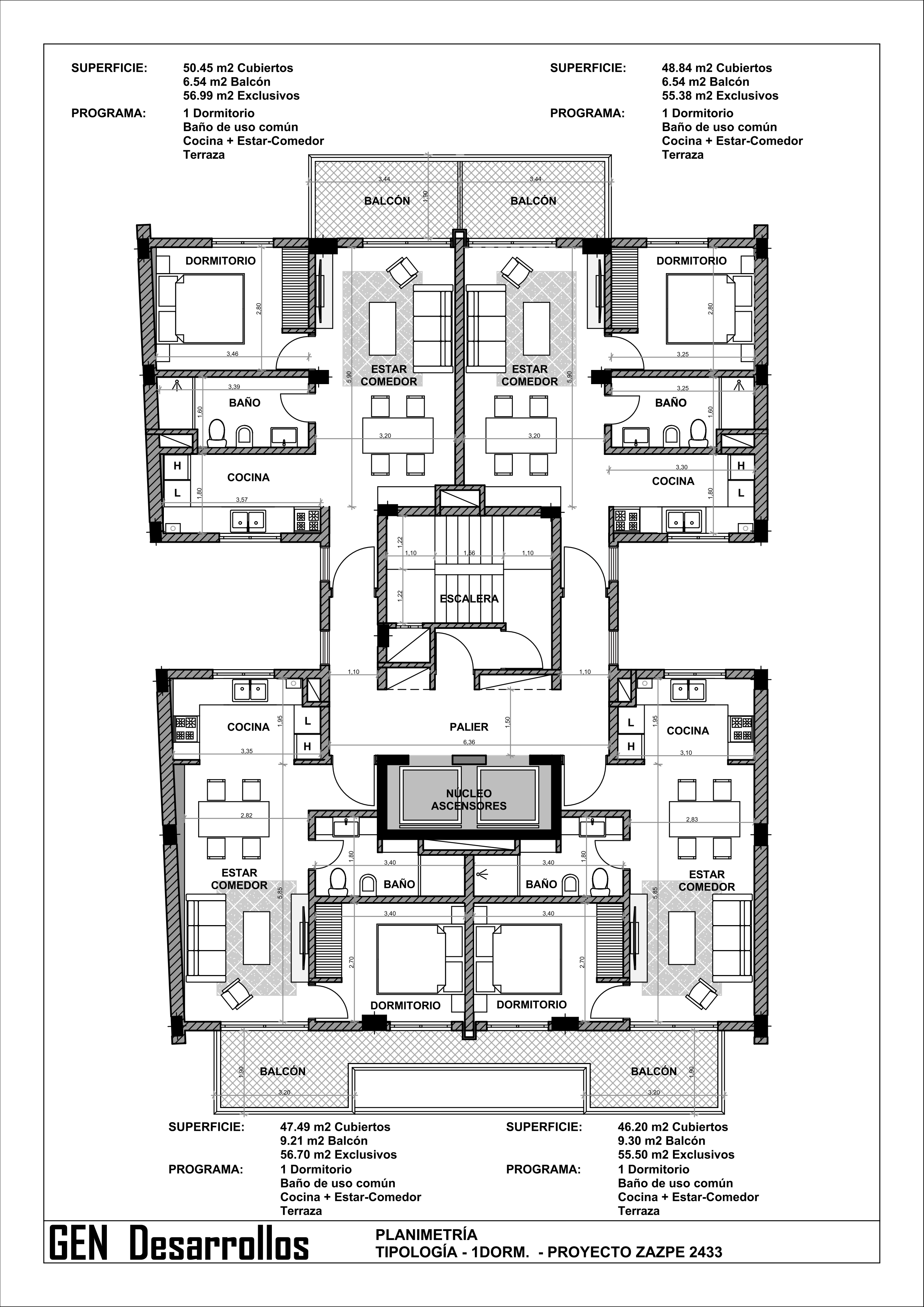
Planos del proyecto

Explorá los planos detallados de Boedo 2 y conocé la distribución de espacios en cada nivel del edificio.

Planos Zazpe

Planos del proyecto

Planos completos del desarrollo mostrando la distribución de espacios, unidades y diseño arquitectónico del edificio.

¿Tenés un desarrollo para comercializar?

Hablemos sobre cómo podemos potenciar tu proyecto inmobiliario con nuestra experiencia y red de contactos.

Obtené toda la información que necesitas

Descargar documentos y ubicación

Ubicación

Este desarrollo se encuentra en Monseñor Zazpe 2433, Santa Fe, Argentina, en una zona de gran desarrollo comercial y residencial.

Monseñor Zazpe 2433, Santa Fe, Argentina
Ubicacion Monsenor Zazpe 2433, Santa Fe

Folleto completo

Planos, especificaciones, caracteristicas, etc.

Planos detallados
caracteristicas
Opciones de financiación
Descargar PDF

Unidades disponibles

Lista de unidades disponibles.

¡Descargar lista!

¿Te interesa Monseñor Zazpe?

Contactanos para más información