Render o imagen del proyecto Boedo

Desarrollo Boedo 2

Departamento en Pozo, en Barrio Maria Selva, 1 dormitorio.

Renders del proyecto

Vista Exterior

Descripción render

Sobre el proyecto

Boedo 2 es un innovador desarrollo ubicado en Mitre 6767, entre Av. Galicia y Pje. Boedo. Será un edificio de 3 niveles y se caracterizará por su material constructivo de muy buena calidad, con estilo moderno y terminaciones con detalles que lo hacen confortable.

Las unidades contaran con aberturas de aluminio pre-pintados, linea moderna, sector social y baños con pisos cerámicos. También en el sector de los dormitorios, además de paredes y cielorrasos enlucidos en yeso.

Características:

Unidades de 1 y 2 ambientes con superficies de 12.5 a 44 m² totales

Excelente calidad constructiva con materiales de primera línea

Financiación en pesos + CAC sin gastos de boleto y comisión

Diseño moderno con estilo innovador y máximo aprovechamiento lumínico

Inversión inicial desde 6.000 USD con entrega programada para Febrero 2026.

Estado actual del proyecto

Ubicación
Mitre 6767
Unidades
9 departamentos.
3 Niveles.
Entrega Febrero 2026

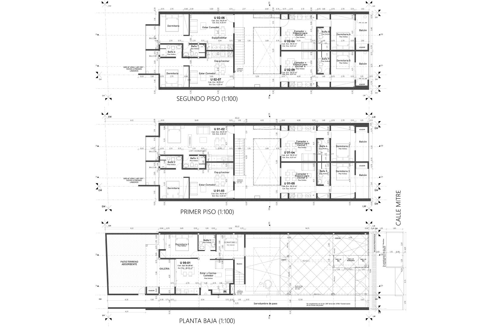
Planos del proyecto

Explorá los planos detallados de Boedo 2 y conocé la distribución de espacios en cada nivel del edificio.

Planos Boedo 2

Planos del Proyecto

Planos completos del desarrollo mostrando la distribución de espacios, unidades y diseño arquitectónico del edificio.

¿Tenés un desarrollo para comercializar?

Hablemos sobre cómo podemos potenciar tu proyecto inmobiliario con nuestra experiencia y red de contactos.

Obtené toda la información que necesitas

Descargar documentos y ubicación

Ubicación Privilegiada

Boedo 2 se encuentra en Mitre 6767, Santa Fe, Argentina, en una zona de gran desarrollo comercial y residencial.

Mitre 6767, Santa Fe, Argentina
Ubicación Mitre 6767, Santa Fe

Folleto completo

Planos, especificaciones, caracteristicas, etc.

Planos detallados
caracteristicas
Opciones de financiación
Descargar PDF

Unidades disponibles

Lista de unidades disponibles.

¡Descargar lista!

¿Te interesa Boedo 2?

Contactanos para más información